厚木市船子第7 新築戸建 全3棟 神奈川県厚木市船子 |3,180万円の新築一戸建て|エムイーPLUS横浜
| 価格 | 3,180万円 ![]() |
||||
|---|---|---|---|---|---|
| 所在地 | 神奈川県厚木市船子
この地域周辺の物件を見る |
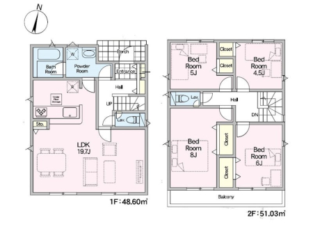
土地面積 | 124.73m² (37.73坪) | 建物面積 | 100.44u |
| 築年月 | 2026年7月築 | 間取り | 4LDK (-) | ||
| 交通 |
小田急小田原線 本厚木 バス6分 赤羽根入口 停歩10分
小田急小田原線 愛甲石田 バス4分 船子 停歩8分 |
||||
| 特徴 |
|
|---|---|
| セールスコメント | |
| 採光面 | - | 構造/階数 | 木造/地上2階建 |
|---|---|---|---|
| 建ぺい率 | 60(%) | 容積率 | 200(%) |
| 駐車場 | 有 | 現況/引渡し | -/2026年7月下旬 |
| 土地権利 | 所有権 | 私道負担面積 | - |
| 接道状況 | 接道: 北 公道 道路幅: 5.8m | 用途地域 |
第二種住居地域
|
| セットバック | なし | 法令上の制限 | 日影規制 道路斜線制限 隣地斜線制限 準防火地域 法第22条区域 景観法 都市再生特別措置法 宅地造成等工事規制区域 |
| 地目 | 宅地 | 地勢 | |
| 建築確認番号 | 第R08SHC103555号 | 都市計画 | 市街化区域 |
| 取引態様 | 仲介 | ||
| 情報更新日 | 2026年05月16日 | 次回更新日 | 2026年05月30日 |
| 小学校区 | () |
中学校区 | () |
|---|
| 価格 | 万円 | ||
|---|---|---|---|
| 年利率 | % |
||
| ボーナス払い | 返済年数 | ||
| 頭金 | 直接入力する | 万円 | |

毎月のご返済額 |
ボーナス(×年2回) |
物件価格3,180万円 |
![]() |
![]() |
厚木市船子
3180万円〜3380万円 |
-