武蔵村山市残堀4丁目の分譲住宅一覧|東京・神奈川の不動産のことならエムイーPLUS横浜

エムイーPLUS横浜

045-489-5600

営業時間:9:00~ 定休日:毎週水曜

TOPページ >
物件検索 >
分譲住宅特集一覧 >
武蔵村山市残堀4丁目の分譲住宅特集一覧
3件中1〜3件を表示
  • 1
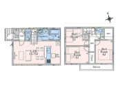
新築一戸建て
価格 2,980万円 
所在地 武蔵村山市残堀4丁目
交通 西武拝島線 西武立川駅 バス10分停歩5分
建物面積 77.76m2 土地面積 113.10m2

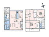
新築一戸建て
価格 3,180万円 
所在地 武蔵村山市残堀4丁目
交通 西武拝島線 西武立川駅 バス10分停歩5分
建物面積 78.80m2 土地面積 100.50m2

新築一戸建て
価格 3,280万円 
所在地 武蔵村山市残堀4丁目
交通 西武拝島線 西武立川駅 バス10分停歩5分
建物面積 79.38m2 土地面積 100.00m2

3件中1〜3件を表示
  • 1