川崎市川崎区浜町3丁目 新築戸建 全1棟 神奈川県川崎市川崎区浜町3丁目|5,280万円の新築一戸建て|エムイーPLUS横浜
| 価格 | 5,280万円 ![]() |
||||
|---|---|---|---|---|---|
| 所在地 | 神奈川県川崎市川崎区浜町3丁目
この地域周辺の物件を見る |
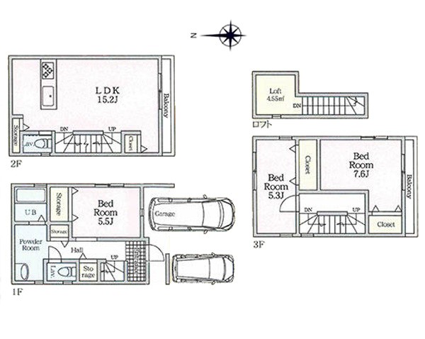
土地面積 | 74.85m² (22.64坪) | 建物面積 | 95.42u |
| 築年月 | 2026年3月築 | 間取り | 3LDK (-) | ||
| 交通 |
JR京浜東北・根岸線 川崎 バス21分 四ツ角 停歩6分
JR南武線 浜川崎 徒歩17分 |
||||
| 特徴 |
|
|---|---|
| セールスコメント | |
| 採光面 | - | 構造/階数 | 木造/地上3階建 |
|---|---|---|---|
| 建ぺい率 | 60(%) | 容積率 | 160(%) |
| 駐車場 | 有 | 現況/引渡し | 空家/即時 |
| 土地権利 | 所有権 | 私道負担面積 | - |
| 接道状況 | 接道: 南 公道 道路幅: 2.4m | 用途地域 |
第二種住居地域
|
| セットバック | なし | 法令上の制限 | セットバック約4.18平米 駐車場2台分(1台は軽自動車) 準防火地域 日影規制 隣地斜線制限 北側斜線制限 道路斜線制限 高さ制限20m |
| 地目 | 宅地 | 地勢 | |
| 建築確認番号 | 令和7年2月6日確03513H号 | 都市計画 | 市街化区域 |
| 取引態様 | 仲介 | ||
| 情報更新日 | 2026年04月15日 | 次回更新日 | 2026年04月29日 |
| 小学校区 | 川崎市立さくら小学校 (神奈川県川崎市) この学区の他の物件を見る |
中学校区 | 桜本中学校 (神奈川県川崎市) この学区の他の物件を見る |
|---|
| 価格 | 万円 | ||
|---|---|---|---|
| 年利率 | % |
||
| ボーナス払い | 返済年数 | ||
| 頭金 | 直接入力する | 万円 | |

毎月のご返済額 |
ボーナス(×年2回) |
物件価格5,280万円 |
-