国分寺市東戸倉2丁目 新築戸建 全3棟 東京都国分寺市東戸倉2丁目|5,280万円の新築一戸建て|エムイーPLUS横浜
| 価格 | 5,280万円 ![]() |
||||
|---|---|---|---|---|---|
| 所在地 | 東京都国分寺市東戸倉2丁目
この地域周辺の物件を見る |
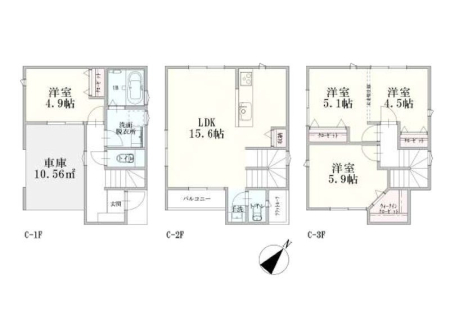
土地面積 | 60.96m² (18.44坪) | 建物面積 | 83u |
| 築年月 | 2026年2月築 | 間取り | 2SLDK (-) | ||
| 交通 |
西武国分寺線 鷹の台 徒歩22分
|
||||
| 特徴 |
|
|---|---|
| セールスコメント | |
| 採光面 | - | 構造/階数 | 木造/地上3階建 |
|---|---|---|---|
| 建ぺい率 | 60(%) | 容積率 | 200(%) |
| 駐車場 | 有 | 現況/引渡し | 空家/即時 |
| 土地権利 | 所有権 | 私道負担面積 | - |
| 接道状況 | 接道: 南西 公道 道路幅: 4m 接道: 東南 公道 道路幅: 4m |
用途地域 |
第一種中高層住居専用地域
|
| セットバック | あり | 法令上の制限 | 第二種高度地区 セットバック+隅切り(2.74平米) |
| 地目 | 宅地 | 地勢 | |
| 建築確認番号 | 第KS125-3120-51287号 | 都市計画 | 市街化区域 |
| 取引態様 | 仲介 | ||
| 情報更新日 | 2026年03月08日 | 次回更新日 | 2026年03月22日 |
| 小学校区 | 国分寺市立第六小学校 (東京都国分寺市) この学区の他の物件を見る |
中学校区 | 第一中学校 (東京都国分寺市) この学区の他の物件を見る |
|---|
| 価格 | 万円 | ||
|---|---|---|---|
| 年利率 | % |
||
| ボーナス払い | 返済年数 | ||
| 頭金 | 直接入力する | 万円 | |

毎月のご返済額 |
ボーナス(×年2回) |
物件価格5,280万円 |
![]() |
![]() |
国分寺市東戸倉2丁目
4980万円〜5280万円 |
-