鎌倉市七里ガ浜1丁目 新築戸建 全2棟 神奈川県鎌倉市七里ガ浜1丁目|5,980万円の新築一戸建て|エムイーPLUS横浜
| 価格 | 5,980万円値下がり ![]() |
||||
|---|---|---|---|---|---|
| 所在地 | 神奈川県鎌倉市七里ガ浜1丁目
この地域周辺の物件を見る |
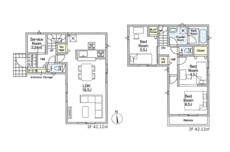
土地面積 | 118.14m² (35.74坪) | 建物面積 | 91.29u |
| 築年月 | 2026年5月築 | 間取り | 4SLDK (-) | ||
| 交通 |
江ノ島電鉄 鎌倉高校前 徒歩17分
|
||||
| 特徴 |
|
|---|---|
| セールスコメント | |
| 採光面 | - | 構造/階数 | 木造/地上2階建 |
|---|---|---|---|
| 建ぺい率 | 40(%) | 容積率 | 80(%) |
| 駐車場 | 有 | 現況/引渡し | -/2026年5月下旬 |
| 土地権利 | 所有権 | 私道負担面積 | - |
| 接道状況 | 接道: 西 公道 道路幅: 4m | 用途地域 |
第一種低層住居専用地域
|
| セットバック | なし | 法令上の制限 | 第2種風致地区内、谷戸の住宅地、高度指定なし、防火・準防火の指定のない地域 |
| 地目 | 宅地 | 地勢 | |
| 建築確認番号 | 第25UDI1T建03205号 | 都市計画 | 市街化区域 |
| 取引態様 | 仲介 | ||
| 情報更新日 | 2026年04月15日 | 次回更新日 | 2026年04月29日 |
| 小学校区 | 鎌倉市立七里ガ浜小学校 (神奈川県鎌倉市) この学区の他の物件を見る |
中学校区 | 腰越中学校 (神奈川県鎌倉市) この学区の他の物件を見る |
|---|
| 価格 | 万円 | ||
|---|---|---|---|
| 年利率 | % |
||
| ボーナス払い | 返済年数 | ||
| 頭金 | 直接入力する | 万円 | |

毎月のご返済額 |
ボーナス(×年2回) |
物件価格5,980万円 |
-