川崎市多摩区南生田3丁目2期 新築戸建 全4棟 神奈川県川崎市多摩区南生田3丁目|5,499万円の新築一戸建て|エムイーPLUS横浜
| 価格 | 5,499万円 ![]() |
||||
|---|---|---|---|---|---|
| 所在地 | 神奈川県川崎市多摩区南生田3丁目
この地域周辺の物件を見る |
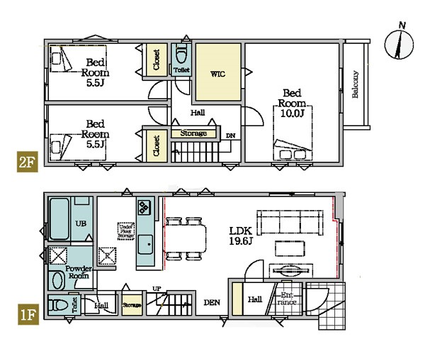
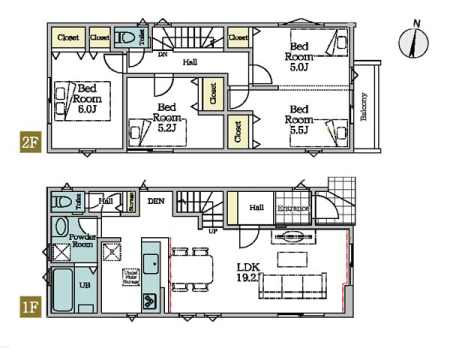
土地面積 | 136.2m² (41.2坪) | 建物面積 | 97.5u |
| 築年月 | 2026年5月築 | 間取り | 3LDK (-) | ||
| 交通 |
小田急小田原線 生田 徒歩18分
小田急小田原線 生田 バス8分 南生田小学校 停歩3分 |
||||
| 特徴 |
|
|---|---|
| セールスコメント | |
| 採光面 | - | 構造/階数 | 木造/地上2階建 |
|---|---|---|---|
| 建ぺい率 | 50(%) | 容積率 | 80(%) |
| 駐車場 | 有 | 現況/引渡し | -/2026年5月下旬 |
| 土地権利 | 所有権 | 私道負担面積 | - |
| 接道状況 | 接道: 東 公道 道路幅: 7.5m | 用途地域 |
第一種低層住居専用地域
|
| セットバック | なし | 法令上の制限 | 法第22条区域、下水道処理区域、宅地造成等工事規制区域、日影規制3-2h1.5m、外壁後退距離:道路を除く敷地境界から1m 敷地面積125平米以上 |
| 地目 | 宅地 | 地勢 | |
| 建築確認番号 | 第25UDI1W建0861号 | 都市計画 | 市街化区域 |
| 取引態様 | 仲介 | ||
| 情報更新日 | 2026年02月17日 | 次回更新日 | 2026年03月03日 |
| 小学校区 | 川崎市立南生田小学校 (神奈川県川崎市) この学区の他の物件を見る |
中学校区 | 南生田中学校 (神奈川県川崎市) この学区の他の物件を見る |
|---|
| 価格 | 万円 | ||
|---|---|---|---|
| 年利率 | % |
||
| ボーナス払い | 返済年数 | ||
| 頭金 | 直接入力する | 万円 | |

毎月のご返済額 |
ボーナス(×年2回) |
物件価格5,499万円 |
![]() |
![]() |
川崎市多摩区南生田3丁目
5499万円〜5599万円 |
-