相模原市緑区西橋本3丁目 新築戸建 全1棟 神奈川県相模原市緑区西橋本3丁目|5,380万円の新築一戸建て|エムイーPLUS横浜
| 価格 | 5,380万円値下がり ![]() |
||||
|---|---|---|---|---|---|
| 所在地 | 神奈川県相模原市緑区西橋本3丁目
この地域周辺の物件を見る |
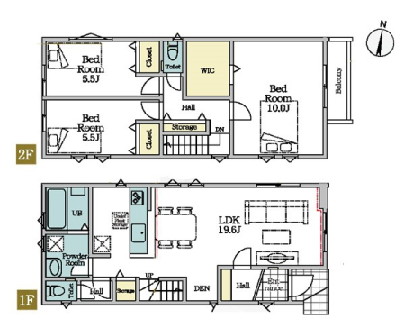
土地面積 | 106.53m² (32.23坪) | 建物面積 | 99.51u |
| 築年月 | 2026年1月築 | 間取り | 4LDK (-) | ||
| 交通 |
JR横浜線 橋本 徒歩15分
JR相模線 橋本 徒歩15分 |
||||
| 特徴 |
|
|---|---|
| セールスコメント | |
| 採光面 | - | 構造/階数 | 木造/地上2階建 |
|---|---|---|---|
| 建ぺい率 | 60(%) | 容積率 | 200(%) |
| 駐車場 | 有 | 現況/引渡し | 空家/即時 |
| 土地権利 | 所有権 | 私道負担面積 | あり 80.22m² |
| 接道状況 | 接道: 北東 私道 道路幅: 4.5m 接道: 北西 公道 道路幅: 5m |
用途地域 |
工業地域
|
| セットバック | なし | 法令上の制限 | - |
| 地目 | 宅地 | 地勢 | |
| 建築確認番号 | 第R07SHC118499号 | 都市計画 | 市街化区域 |
| 取引態様 | 仲介 | ||
| 情報更新日 | 2026年02月13日 | 次回更新日 | 2026年02月27日 |
| 小学校区 | 相模原市立橋本小学校 (神奈川県相模原市) この学区の他の物件を見る |
中学校区 | 旭中学校 (神奈川県相模原市) この学区の他の物件を見る |
|---|
| 価格 | 万円 | ||
|---|---|---|---|
| 年利率 | % |
||
| ボーナス払い | 返済年数 | ||
| 頭金 | 直接入力する | 万円 | |

毎月のご返済額 |
ボーナス(×年2回) |
物件価格5,380万円 |
-