相模原市緑区上九沢12期 新築戸建 全1棟 神奈川県相模原市緑区上九沢 |3,450万円の新築一戸建て|エムイーPLUS横浜
| 価格 | 3,450万円 ![]() |
||||
|---|---|---|---|---|---|
| 所在地 | 神奈川県相模原市緑区上九沢
この地域周辺の物件を見る |
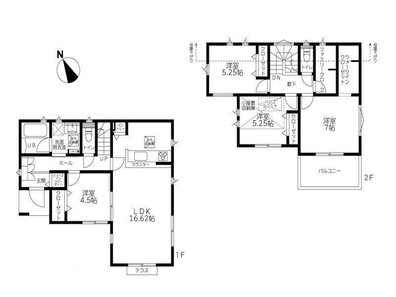
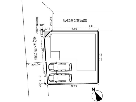
土地面積 | 120.12m² (36.34坪) | 建物面積 | 101.02u |
| 築年月 | 2026年7月築 | 間取り | 4LDK (-) | ||
| 交通 |
JR横浜線 橋本 バス13分 上九沢 停歩5分
京王相模原線 橋本 バス13分 上九沢 停歩5分 |
||||
| 特徴 |
|
|---|---|
| セールスコメント | |
| 採光面 | - | 構造/階数 | 木造/地上2階建 |
|---|---|---|---|
| 建ぺい率 | 70(%) | 容積率 | 150(%) |
| 駐車場 | 有 | 現況/引渡し | -/2026年7月下旬 |
| 土地権利 | 所有権 | 私道負担面積 | - |
| 接道状況 | 接道: 北東 公道 道路幅: 4m 接道: 北西 公道 道路幅: 4m |
用途地域 |
第一種中高層住居専用地域
|
| セットバック | あり | 法令上の制限 | 隅切り部分(約1.07平米)と北西・北東側のセットバック部分(詳細地積は分筆後確定)は持分を全部所有頂きます |
| 地目 | 宅地 | 地勢 | 平坦 |
| 建築確認番号 | 第25UDI1K建01666号 | 都市計画 | 市街化区域 |
| 取引態様 | 仲介 | ||
| 情報更新日 | 2025年12月16日 | 次回更新日 | 2025年12月30日 |
| 小学校区 | 相模原市立大沢小学校 (神奈川県相模原市) この学区の他の物件を見る |
中学校区 | 大沢中学校 (神奈川県相模原市) この学区の他の物件を見る |
|---|
| 価格 | 万円 | ||
|---|---|---|---|
| 年利率 | % |
||
| ボーナス払い | 返済年数 | ||
| 頭金 | 直接入力する | 万円 | |

毎月のご返済額 |
ボーナス(×年2回) |
物件価格3,450万円 |
-