横浜市旭区今宿2丁目 新築戸建 全2棟 神奈川県横浜市旭区今宿2丁目|5,590万円の新築一戸建て|エムイーPLUS横浜
| 価格 | 5,590万円 ![]() |
||||
|---|---|---|---|---|---|
| 所在地 | 神奈川県横浜市旭区今宿2丁目
この地域周辺の物件を見る |
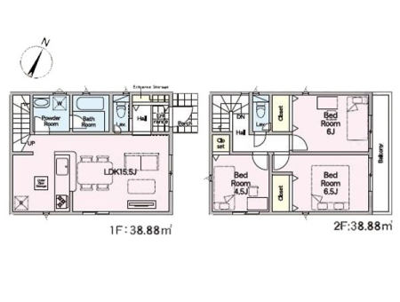
土地面積 | 167.41m² (50.64坪) | 建物面積 | 95.22u |
| 築年月 | 2026年5月築 | 間取り | 4LDK (-) | ||
| 交通 |
相鉄本線 二俣川 バス8分 ニュータウン第5 停歩3分
相鉄本線 希望ヶ丘 徒歩25分 |
||||
| 特徴 |
|
|---|---|
| セールスコメント | 土地面積:路地状部分約36平米含 外壁後退距離:前面道路から1m 緑化地域 川井・矢指風致地区:第3種 |
| 採光面 | - | 構造/階数 | 木造/地上2階建 |
|---|---|---|---|
| 建ぺい率 | 40(%) | 容積率 | 80(%) |
| 駐車場 | 有 | 現況/引渡し | -/2026年5月下旬 |
| 土地権利 | 所有権 | 私道負担面積 | - |
| 接道状況 | 接道: 東 公道 道路幅: 6.5m | 用途地域 |
第一種低層住居専用地域
|
| セットバック | なし | 法令上の制限 | 建築物再生可能エネルギー利用促進区域 文化財保護法 第1種高度地区 宅地造成等工事規制区域 法22条区域 高さ制限10m 景観法 文化財保護法(埋蔵文化財) 日影規制:3h-2h/1.5m |
| 地目 | 宅地 | 地勢 | |
| 建築確認番号 | 第HPA−25−11942−1号 | 都市計画 | 市街化区域 |
| 取引態様 | 仲介 | ||
| 情報更新日 | 2025年12月15日 | 次回更新日 | 2025年12月29日 |
| 小学校区 | 横浜市立中沢小学校 (神奈川県横浜市) この学区の他の物件を見る |
中学校区 | 旭中学校 (神奈川県横浜市) この学区の他の物件を見る |
|---|
| 価格 | 万円 | ||
|---|---|---|---|
| 年利率 | % |
||
| ボーナス払い | 返済年数 | ||
| 頭金 | 直接入力する | 万円 | |

毎月のご返済額 |
ボーナス(×年2回) |
物件価格5,590万円 |
![]() |
![]() |
横浜市旭区今宿2丁目
5190万円〜5590万円 |
-