青梅市長淵3丁目第4 新築戸建 全7棟 東京都青梅市長淵3丁目|2,680万円の新築一戸建て|エムイーPLUS横浜
| 価格 | 2,680万円値下がり ![]() |
||||
|---|---|---|---|---|---|
| 所在地 | 東京都青梅市長淵3丁目
この地域周辺の物件を見る |
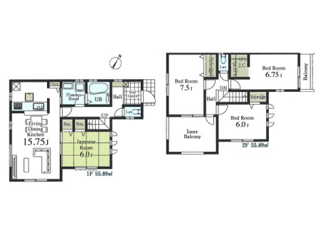
土地面積 | 169.63m² (51.31坪) | 建物面積 | 101.24u |
| 築年月 | 2025年10月築 | 間取り | 4LDK (-) | ||
| 交通 |
JR青梅線 河辺 バス15分 万場坂 停歩6分
JR青梅線 東青梅 徒歩22分 |
||||
| 特徴 |
|
|---|---|
| セールスコメント | |
| 採光面 | - | 構造/階数 | 木造/地上2階建 |
|---|---|---|---|
| 建ぺい率 | 60(%) | 容積率 | 150(%) |
| 駐車場 | 有 | 現況/引渡し | 空家/即時 |
| 土地権利 | 所有権 | 私道負担面積 | - |
| 接道状況 | 接道: 北東 公道 道路幅: 5.3m | 用途地域 |
第一種住居地域
|
| セットバック | なし | 法令上の制限 | 景観法 宅地造成等工事規制区域 航空法 準防火地域 12m第2種高度地区 日影規制4h-2.5h/4m |
| 地目 | 宅地 | 地勢 | |
| 建築確認番号 | 第25UDI1W建00976号 | 都市計画 | - |
| 取引態様 | 仲介 | ||
| 情報更新日 | 2025年11月14日 | 次回更新日 | 2025年11月28日 |
| 小学校区 | 青梅市立第二小学校 (東京都青梅市) この学区の他の物件を見る |
中学校区 | 第二中学校 (東京都青梅市) この学区の他の物件を見る |
|---|
| 価格 | 万円 | ||
|---|---|---|---|
| 年利率 | % |
||
| ボーナス払い | 返済年数 | ||
| 頭金 | 直接入力する | 万円 | |

毎月のご返済額 |
ボーナス(×年2回) |
物件価格2,680万円 |
![]() |
![]() |
青梅市長淵3丁目
2580万円〜3280万円 |
-