小平市花小金井5丁目6期 新築戸建 全2棟 東京都小平市花小金井5丁目|6,780万円の新築一戸建て|エムイーPLUS横浜
| 価格 | 6,780万円 ![]() |
||||
|---|---|---|---|---|---|
| 所在地 | 東京都小平市花小金井5丁目
この地域周辺の物件を見る |
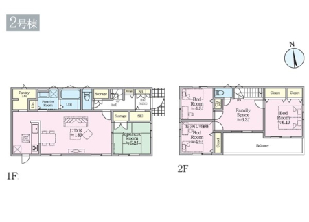
土地面積 | 120.51m² (36.45坪) | 建物面積 | 96.34u |
| 築年月 | 2025年12月築 | 間取り | 3SLDK (-) | ||
| 交通 |
西武新宿線 花小金井 徒歩15分
西武拝島線 小平 徒歩30分 |
||||
| 特徴 |
|
|---|---|
| セールスコメント | |
| 採光面 | - | 構造/階数 | 木造/地上2階建 |
|---|---|---|---|
| 建ぺい率 | 40(%) | 容積率 | 80(%) |
| 駐車場 | 有 | 現況/引渡し | -/2025年12月下旬 |
| 土地権利 | 所有権 | 私道負担面積 | - |
| 接道状況 | 接道: 西 公道 道路幅: 5m | 用途地域 |
第一種低層住居専用地域
|
| セットバック | なし | 法令上の制限 | 法22条区域 敷地の一部に電柱及び支柱、支線が入る場合があります |
| 地目 | 宅地 | 地勢 | |
| 建築確認番号 | 第SJK−KX256004480号 | 都市計画 | - |
| 取引態様 | 仲介 | ||
| 情報更新日 | 2025年11月11日 | 次回更新日 | 2025年11月25日 |
| 小学校区 | 小平市立小平第十一小学校 (東京都小平市) この学区の他の物件を見る |
中学校区 | 小平第六中学校 (東京都小平市) この学区の他の物件を見る |
|---|
| 価格 | 万円 | ||
|---|---|---|---|
| 年利率 | % |
||
| ボーナス払い | 返済年数 | ||
| 頭金 | 直接入力する | 万円 | |

毎月のご返済額 |
ボーナス(×年2回) |
物件価格6,780万円 |
-