横浜市港北区下田町6丁目2 新築戸建 全4棟 神奈川県横浜市港北区下田町6丁目|4,280万円の新築一戸建て|エムイーPLUS横浜
| 価格 | 4,280万円 ![]() |
||||
|---|---|---|---|---|---|
| 所在地 | 神奈川県横浜市港北区下田町6丁目
この地域周辺の物件を見る |
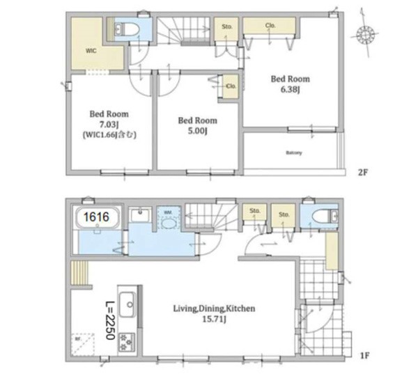
土地面積 | 96.11m² (29.07坪) | 建物面積 | 79.7u |
| 築年月 | 2025年12月築 | 間取り | 3LDK (-) | ||
| 交通 |
- - -
|
||||
| 特徴 |
|
|---|---|
| セールスコメント | |
| 採光面 | - | 構造/階数 | 木造/地上2階建 |
|---|---|---|---|
| 建ぺい率 | 60(%) | 容積率 | 200(%) |
| 駐車場 | 有 | 現況/引渡し | -/2025年12月下旬 |
| 土地権利 | 所有権 | 私道負担面積 | - |
| 接道状況 | 接道: 東 公道 道路幅: 5.8m | 用途地域 |
第一種住居地域
|
| セットバック | なし | 法令上の制限 | 路地状部分約34.7%含 車庫等7.88平米含 宅地造成工事規制区域 本事業地内で井戸が発見されましたが売主にて井戸払い埋め戻し済みです 同丁目にて昭和51年から平成2年の間に浸水の履歴あり |
| 地目 | 宅地 | 地勢 | |
| 建築確認番号 | 第KBI-SGM25-10-0414号 | 都市計画 | 市街化区域 |
| 取引態様 | 仲介 | ||
| 情報更新日 | 2025年11月11日 | 次回更新日 | 2025年11月25日 |
| 小学校区 | 横浜市立下田小学校 (神奈川県横浜市) この学区の他の物件を見る |
中学校区 | 日吉台西中学校 (神奈川県横浜市) この学区の他の物件を見る |
|---|
| 価格 | 万円 | ||
|---|---|---|---|
| 年利率 | % |
||
| ボーナス払い | 返済年数 | ||
| 頭金 | 直接入力する | 万円 | |

毎月のご返済額 |
ボーナス(×年2回) |
物件価格4,280万円 |
![]() |
![]() |
横浜市港北区下田町6丁目
4280万円〜4680万円 |
-