座間市座間1丁目第28 新築戸建 全2棟 神奈川県座間市座間1丁目|3,880万円の新築一戸建て|エムイーPLUS横浜
| 価格 | 3,880万円 ![]() |
||||
|---|---|---|---|---|---|
| 所在地 | 神奈川県座間市座間1丁目
この地域周辺の物件を見る |
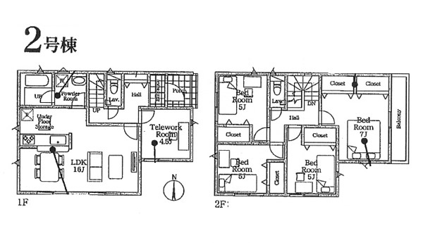
土地面積 | 100m² (30.25坪) | 建物面積 | 101.25u |
| 築年月 | 2025年12月築 | 間取り | 4LDK (-) | ||
| 交通 |
JR相模線 相武台下 徒歩13分
JR相模線 入谷 徒歩17分 |
||||
| 特徴 |
|
|---|---|
| セールスコメント | |
| 採光面 | - | 構造/階数 | 木造/地上2階建 |
|---|---|---|---|
| 建ぺい率 | 60(%) | 容積率 | 150(%) |
| 駐車場 | 有 | 現況/引渡し | -/2025年12月下旬 |
| 土地権利 | 所有権 | 私道負担面積 | - |
| 接道状況 | 接道: 南 公道 道路幅: 5.4m 接道: 東 公道 道路幅: 5m |
用途地域 |
第一種中高層住居専用地域
|
| セットバック | なし | 法令上の制限 | 道路斜線制限 隣地斜線制限 |
| 地目 | 宅地 | 地勢 | |
| 建築確認番号 | 第KBI-SGM25-10-3211号 | 都市計画 | 市街化区域 |
| 取引態様 | 仲介 | ||
| 情報更新日 | 2025年11月14日 | 次回更新日 | 2025年11月28日 |
| 小学校区 | () |
中学校区 | () |
|---|
| 価格 | 万円 | ||
|---|---|---|---|
| 年利率 | % |
||
| ボーナス払い | 返済年数 | ||
| 頭金 | 直接入力する | 万円 | |

毎月のご返済額 |
ボーナス(×年2回) |
物件価格3,880万円 |
![]() |
![]() |
座間市座間1丁目
3480万円〜3880万円 |
-