秦野市南矢名第18 新築戸建 全1棟 神奈川県秦野市南矢名 |3,280万円の新築一戸建て|エムイーPLUS横浜
| 価格 | 3,280万円値下がり ![]() |
||||
|---|---|---|---|---|---|
| 所在地 | 神奈川県秦野市南矢名
この地域周辺の物件を見る |
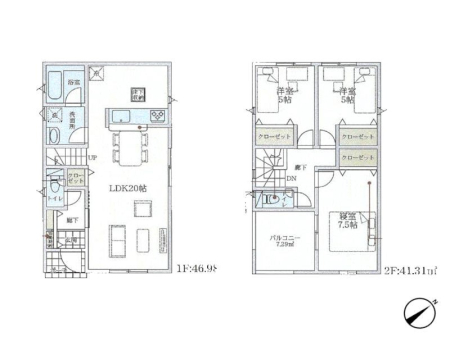
土地面積 | 149.93m² (45.35坪) | 建物面積 | 95.58u |
| 築年月 | 2025年12月築 | 間取り | 3LDK (-) | ||
| 交通 |
小田急小田原線 東海大学前 小田原線鶴巻温泉駅 車分
小田急小田原線 鶴巻温泉 |
||||
| 特徴 |
|
|---|---|
| セールスコメント | |
| 採光面 | - | 構造/階数 | 木造/地上2階建 |
|---|---|---|---|
| 建ぺい率 | 50(%) | 容積率 | 100(%) |
| 駐車場 | 有 | 現況/引渡し | -/2025年12月下旬 |
| 土地権利 | 所有権 | 私道負担面積 | - |
| 接道状況 | 接道: 北東 公道 道路幅: 5m | 用途地域 |
第一種低層住居専用地域
|
| セットバック | なし | 法令上の制限 | 隣地斜線制限 北側斜線制限 日影規制 高さの制限0m 敷地面積100平米以上 宅地造成及び特定盛土等規制法 都市再生特別措置法 |
| 地目 | 宅地 | 地勢 | |
| 建築確認番号 | 第KBI-SGM25-10-3154号 | 都市計画 | 市街化区域 |
| 取引態様 | 仲介 | ||
| 情報更新日 | 2025年11月15日 | 次回更新日 | 2025年11月29日 |
| 小学校区 | 秦野市立大根小学校 (神奈川県秦野市) この学区の他の物件を見る |
中学校区 | 大根中学校 (神奈川県秦野市) この学区の他の物件を見る |
|---|
| 価格 | 万円 | ||
|---|---|---|---|
| 年利率 | % |
||
| ボーナス払い | 返済年数 | ||
| 頭金 | 直接入力する | 万円 | |

毎月のご返済額 |
ボーナス(×年2回) |
物件価格3,280万円 |
-