相模原市南区相武台3丁目第23 新築戸建 全2棟 神奈川県相模原市南区相武台3丁目|3,680万円の新築一戸建て|エムイーPLUS横浜
| 価格 | 3,680万円 ![]() |
||||
|---|---|---|---|---|---|
| 所在地 | 神奈川県相模原市南区相武台3丁目
この地域周辺の物件を見る |
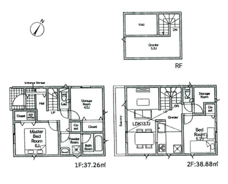
土地面積 | 72.12m² (21.82坪) | 建物面積 | 76.14u |
| 築年月 | 2026年3月築 | 間取り | 2SLDK (-) | ||
| 交通 |
小田急小田原線 相武台前 徒歩16分
小田急小田原線 小田急相模原 徒歩20分 |
||||
| 特徴 |
|
|---|---|
| セールスコメント | |
| 採光面 | - | 構造/階数 | 木造/地上2階建 |
|---|---|---|---|
| 建ぺい率 | 60(%) | 容積率 | 200(%) |
| 駐車場 | 有 | 現況/引渡し | -/2026年3月下旬 |
| 土地権利 | 所有権 | 私道負担面積 | - |
| 接道状況 | 接道: 西 公道 道路幅: 4m | 用途地域 |
第一種中高層住居専用地域
|
| セットバック | なし | 法令上の制限 | 準防火区域 |
| 地目 | 宅地 | 地勢 | |
| 建築確認番号 | 第KBI−SGM25−10−3091号 | 都市計画 | - |
| 取引態様 | 仲介 | ||
| 情報更新日 | 2025年11月11日 | 次回更新日 | 2025年11月25日 |
| 小学校区 | () |
中学校区 | () |
|---|
| 価格 | 万円 | ||
|---|---|---|---|
| 年利率 | % |
||
| ボーナス払い | 返済年数 | ||
| 頭金 | 直接入力する | 万円 | |

毎月のご返済額 |
ボーナス(×年2回) |
物件価格3,680万円 |
![]() |
![]() |
相模原市南区相武台3丁目
3680万円 |
-