横浜市瀬谷区宮沢2丁目第24 新築戸建 全2棟 神奈川県横浜市瀬谷区宮沢2丁目|3,580万円の新築一戸建て|エムイーPLUS横浜
| 価格 | 3,580万円 ![]() |
||||
|---|---|---|---|---|---|
| 所在地 | 神奈川県横浜市瀬谷区宮沢2丁目
この地域周辺の物件を見る |
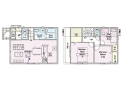
土地面積 | 86.36m² (26.12坪) | 建物面積 | 68.84u |
| 築年月 | 2025年12月築 | 間取り | 3LDK (-) | ||
| 交通 |
相鉄本線 瀬谷 徒歩26分
相鉄本線 三ツ境 徒歩28分 |
||||
| 特徴 |
|
|---|---|
| セールスコメント | 敷地内に電柱及び支線が入る場合があります。 |
| 採光面 | - | 構造/階数 | 木造/地上2階建 |
|---|---|---|---|
| 建ぺい率 | 50(%) | 容積率 | 100(%) |
| 駐車場 | 有 | 現況/引渡し | -/2025年12月下旬 |
| 土地権利 | 所有権 | 私道負担面積 | - |
| 接道状況 | 接道: 北 公道 道路幅: 4.5m | 用途地域 |
第一種低層住居専用地域
|
| セットバック | なし | 法令上の制限 | 宅地造成工事規制区域 準防火地域 第1種高度地区 最低敷地面積100平米 高さ制限10m 私道負担持分約4.87平米 別途ルーフバルコニー4.86平米有 |
| 地目 | 宅地 | 地勢 | |
| 建築確認番号 | 第KBI−SGM25−10−2778号 | 都市計画 | 市街化区域 |
| 取引態様 | 仲介 | ||
| 情報更新日 | 2025年11月15日 | 次回更新日 | 2025年11月29日 |
| 小学校区 | 横浜市立南瀬谷小学校 (神奈川県横浜市) この学区の他の物件を見る |
中学校区 | 南瀬谷中学校 (神奈川県横浜市) この学区の他の物件を見る |
|---|
| 価格 | 万円 | ||
|---|---|---|---|
| 年利率 | % |
||
| ボーナス払い | 返済年数 | ||
| 頭金 | 直接入力する | 万円 | |

毎月のご返済額 |
ボーナス(×年2回) |
物件価格3,580万円 |
![]() |
![]() |
横浜市瀬谷区宮沢2丁目
3580万円〜3880万円 |
-