昭島市緑町3丁目2期 新築戸建 全1棟 東京都昭島市緑町3丁目|3,780万円の新築一戸建て|エムイーPLUS横浜
| 価格 | 3,780万円 ![]() |
||||
|---|---|---|---|---|---|
| 所在地 | 東京都昭島市緑町3丁目
この地域周辺の物件を見る |
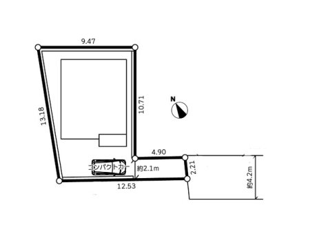
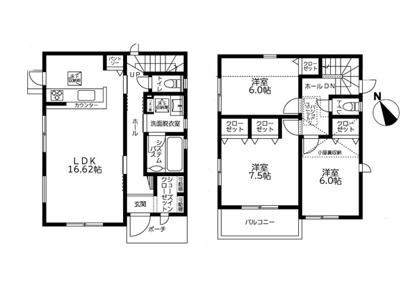
土地面積 | 120.57m² (36.47坪) | 建物面積 | 92.73u |
| 築年月 | 2026年4月築 | 間取り | 3LDK (-) | ||
| 交通 |
JR青梅線 昭島 徒歩17分
JR青梅線 拝島 徒歩25分 |
||||
| 特徴 |
|
|---|---|
| セールスコメント | |
| 採光面 | - | 構造/階数 | 木造/地上2階建 |
|---|---|---|---|
| 建ぺい率 | 40(%) | 容積率 | 80(%) |
| 駐車場 | 有 | 現況/引渡し | -/2026年4月下旬 |
| 土地権利 | 所有権 | 私道負担面積 | あり 17.43m² |
| 接道状況 | 接道: 東南 私道 道路幅: 4.2m | 用途地域 |
第一種低層住居専用地域
|
| セットバック | なし | 法令上の制限 | 法22条区域 宅地造成および特定盛土等規制法 |
| 地目 | 宅地 | 地勢 | |
| 建築確認番号 | 第25UDI1K建01030号 | 都市計画 | - |
| 取引態様 | 仲介 | ||
| 情報更新日 | 2025年11月11日 | 次回更新日 | 2025年11月25日 |
| 小学校区 | 昭島市立拝島第一小学校 (東京都昭島市) この学区の他の物件を見る |
中学校区 | 拝島中学校 (東京都昭島市) この学区の他の物件を見る |
|---|
| 価格 | 万円 | ||
|---|---|---|---|
| 年利率 | % |
||
| ボーナス払い | 返済年数 | ||
| 頭金 | 直接入力する | 万円 | |

毎月のご返済額 |
ボーナス(×年2回) |
物件価格3,780万円 |
-